Парк 160 Ст 6000/800/800мм 3000К
Характеристики
Световой поток, [лм]
—
22320
Световая отдача, [лм/Вт]
—
140
Цветовая температура, [К]
—
3000
Тип кривой силы света
—
широкая боковая
Индекс цветопередачи (CRI), не менее
—
70
Нашли дешевле?
Хочу в подарок
Гарантия 5 лет
Цена действительна только для интернет-магазина и может отличаться от цен в розничных магазинах
Наружные светодиодные светильники Парк прекрасно справляются с решением задач по освещению:
• тропинок и пешеходных дорожек в парках, скверах;
• набережных;
• общественных мест для отдыха.
Данная серия осветительных приборов отличается высокой степенью энергоэффективности – 160 лм/Вт. Прочность и устойчивость к механическим повреждениям обеспечиваются за счет цельнометаллического корпуса со встроенной опорой. Даже в случае установки светильников на большом расстоянии друг от друга объект освещается равномерно. Лаконичный дизайн позволяет гармонично вписать светильники в окружающее пространство.
Светодиодный модуль
Установка светодиодов производится на плату из алюминия.
Корпус
Корпус осветительного прибора изготавливается из анодированного алюминия. Покрытие порошковой краской в течение всего срока службы сохраняет внешний вид, не выцветает и не тускнеет.
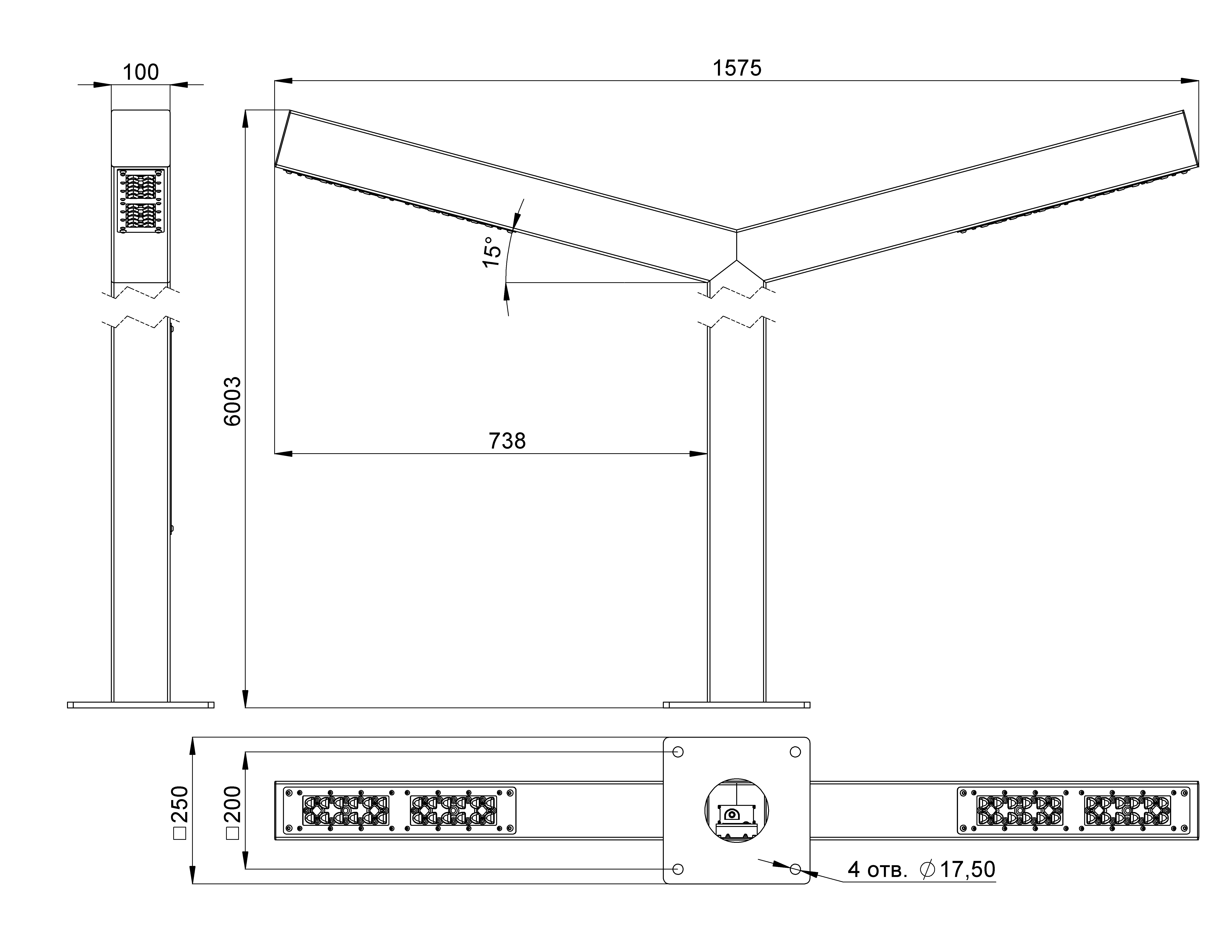
Высота светильников варьируется в пределах от 3 до 5 метров.
В зависимости от поставленных задач, светильники серии могут выпускаться с одним светодиодным модулем для одностороннего освещения либо с двумя модулями, размещенными по обе стороны опоры.
Источник питания
Для защиты от микросекундных колебаний высокой энергии источник питания помещен в металлический корпус и залит теплопроводящим компаундом.
Находится источник питания внутри опоры.
Линза
Уф-стабилизированный поликарбонат, из которого изготовлена оптическая линза, не желтеет и не трескается даже при значительных перепадах температур. Кроме того, линза обладает широкий диаграммой распределения света, благодаря чему светильники создают равномерное свечение даже в случае установки на большом расстоянии друг от друга.
Крепление
Для установки осветительных приборов используются опорные фланцы, которые могут выпускаться в закладном или приварном вариантах, а также под анкерные болты. Оцинкованное покрытие защищает от коррозии и увеличивает срок службы светильников.
• тропинок и пешеходных дорожек в парках, скверах;
• набережных;
• общественных мест для отдыха.
Данная серия осветительных приборов отличается высокой степенью энергоэффективности – 160 лм/Вт. Прочность и устойчивость к механическим повреждениям обеспечиваются за счет цельнометаллического корпуса со встроенной опорой. Даже в случае установки светильников на большом расстоянии друг от друга объект освещается равномерно. Лаконичный дизайн позволяет гармонично вписать светильники в окружающее пространство.
Светодиодный модуль
Установка светодиодов производится на плату из алюминия.
Корпус
Корпус осветительного прибора изготавливается из анодированного алюминия. Покрытие порошковой краской в течение всего срока службы сохраняет внешний вид, не выцветает и не тускнеет.
Высота светильников варьируется в пределах от 3 до 5 метров.
В зависимости от поставленных задач, светильники серии могут выпускаться с одним светодиодным модулем для одностороннего освещения либо с двумя модулями, размещенными по обе стороны опоры.
Источник питания
Для защиты от микросекундных колебаний высокой энергии источник питания помещен в металлический корпус и залит теплопроводящим компаундом.
Находится источник питания внутри опоры.
Линза
Уф-стабилизированный поликарбонат, из которого изготовлена оптическая линза, не желтеет и не трескается даже при значительных перепадах температур. Кроме того, линза обладает широкий диаграммой распределения света, благодаря чему светильники создают равномерное свечение даже в случае установки на большом расстоянии друг от друга.
Крепление
Для установки осветительных приборов используются опорные фланцы, которые могут выпускаться в закладном или приварном вариантах, а также под анкерные болты. Оцинкованное покрытие защищает от коррозии и увеличивает срок службы светильников.
Отзывы
Загрузка отзывов...
Добавить отзыв
|
Световой поток, [лм]
|
22320 |
|
Световая отдача, [лм/Вт]
|
140 |
|
Цветовая температура, [К]
|
3000 |
|
Тип кривой силы света
|
широкая боковая |
|
Индекс цветопередачи (CRI), не менее
|
70 |
|
Мощность, [Вт]
|
160 |
|
Напряжение питания, [В]
|
~176-264 |
|
Коэффициент мощности (Pf), не менее
|
0,98 |
|
Тип питания
|
AC |
|
Частота напряжения электропитания, [Гц]
|
50 |
|
Класс защиты от поражения электрическим током (по ГОСТ IEC 60598-1-2017)
|
I |
|
Температура эксплуатации, [°С]
|
от -60 до +50 |
|
Климатическое исполнение (по ГОСТ 15150-69)
|
УХЛ1 |
|
Срок службы светильника, не менее, [лет]
|
12 |
|
Срок службы светодиодов, не менее, [ч]
|
100 000 |
|
Гарантийный срок, [лет]
|
5 |
|
Габаритные размеры, не более, [мм]
|
6003×1575×250 |
|
Масса, [кг]
|
71,9 |
|
Тип крепления
|
фланцевый |
|
Материал корпуса
|
горячеоцинкованная сталь |
|
Материал оптического элемента
|
УФ-стабилизированный поликарбонат |
На основании Вашего заказа наши сотрудники формируют счет и направляют его Вам на почту.
Оплата производиться по безналичному расчету.
Доставка осуществляется по всей стране удобной для Вас транспортной компанией.
